- Главная
- Проекты домов, бань
- Проекты бань
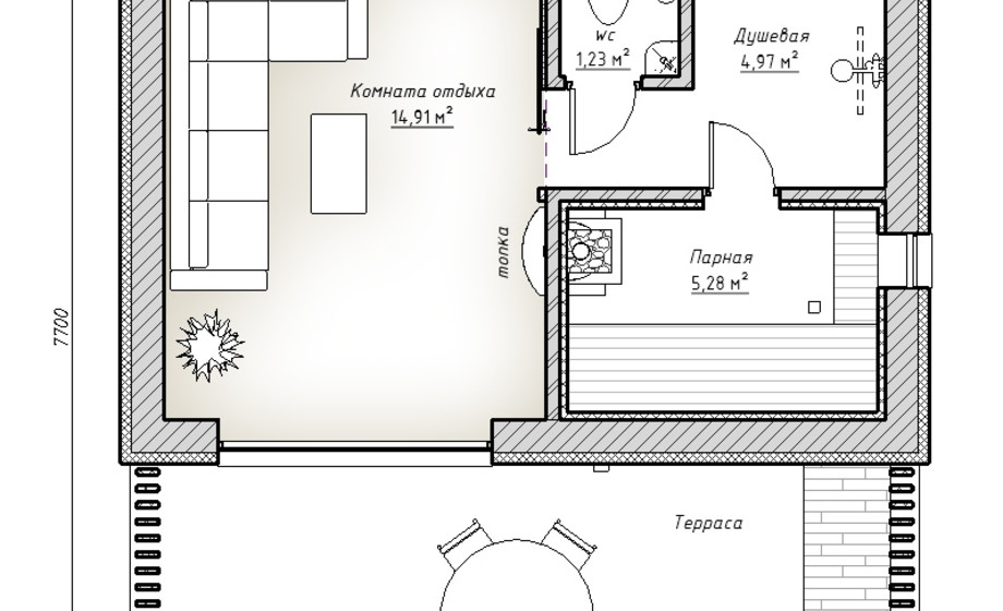
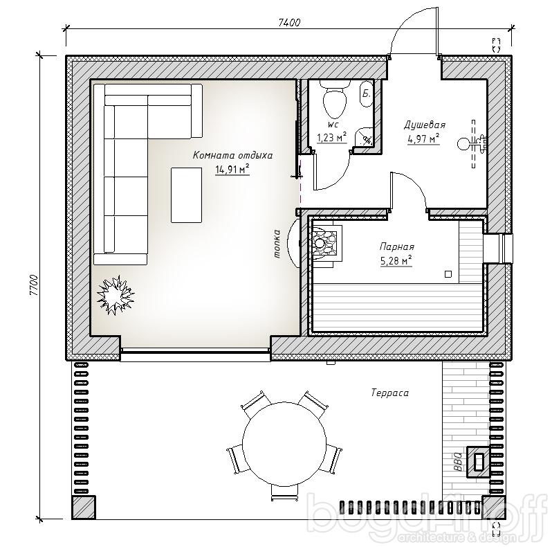
- ХИТ строительства. Комфортабельная баня 7.7 *7.4 метров
парная, комната отдыха, 1 сан-узел, душевая.:
Нашими специалистами был разработан проект небольшой стильной бани. Несмотря на компактные размеры ,баня органично обьединяет в себе все необходимые зоны для полноценного отдыха, делая ее идеальным решением для загородного дома.
Проект включает несколько зон : Парная рассчитана на несколько человек.
Комната отдыха оформлена с акцентом на уют и удобство.
Терраса дополняет внутренне пространство , превращая баню многофункциональный уголок для отдыха.
Мокрая зона для мытья . Плюс сан-узел.
Этот проект подходит для тех кто ценит уют и комфорт в кругу друзей и близких.
В стоимость строительства входит: АР(архитектурный проект) фундамент(геология) , ввод канализации, водопровода, электроэнергии, наружные стены из газосиликатного блока (250мм) бетонные черновые полы 100 мм, внутренние и перегородки (120мм) , балки перекрытия 200 мм. .
Гарантия на выполненные работы 36 месяцев.
Предлагаем строительство с отделкой под ключ.
Ориентировочная стоимость с отделкой под ключ (включая все работы и материалы) 177 000 бел рублей
полный комплекс строительных услуг
Создаем проект дома, либо выбираете из готовых
Проводим геодезию участка
Возводим фундамент
Возводим стены и перекрытия
Кровельные работы
Фасадные работы
Инженерные работы
Получистовая отделка
Чистовая отделка
дачных домов, коттеджей , бань,
в любой ценовой категории,
в любой точке Республики Беларусь!
утвердим проект, который вам понравится
и построим все под ключ.






