C ОТДЕЛКОЙ - Проект К-44. р 12.7*12,6 метров.
C ОТДЕЛКОЙ - Проект К-44. р 12.7*12,6 метров.
Цена строительства от: 266 000 BYN
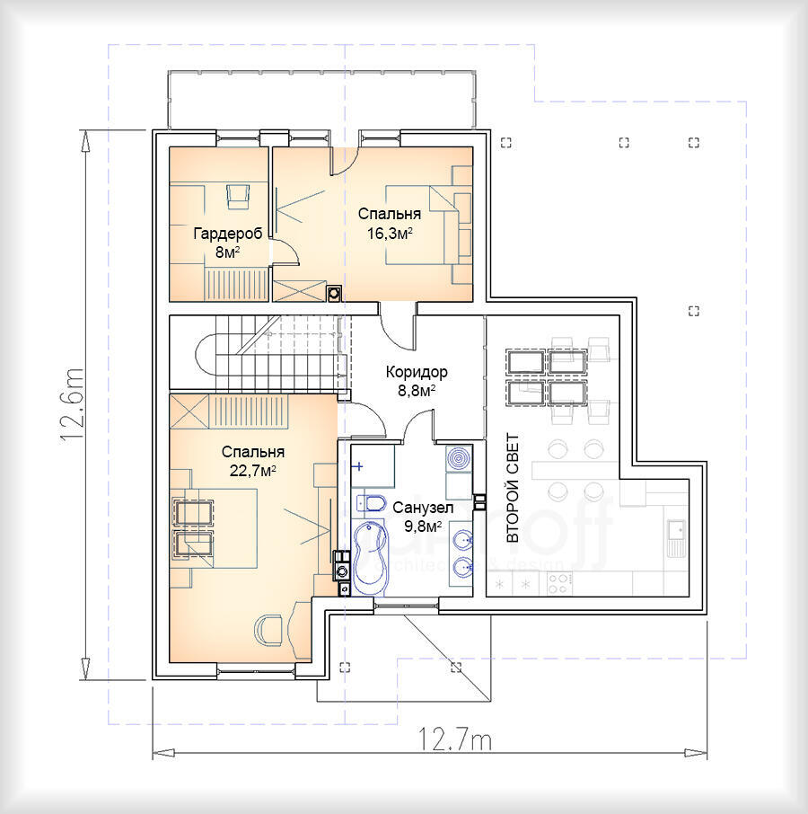
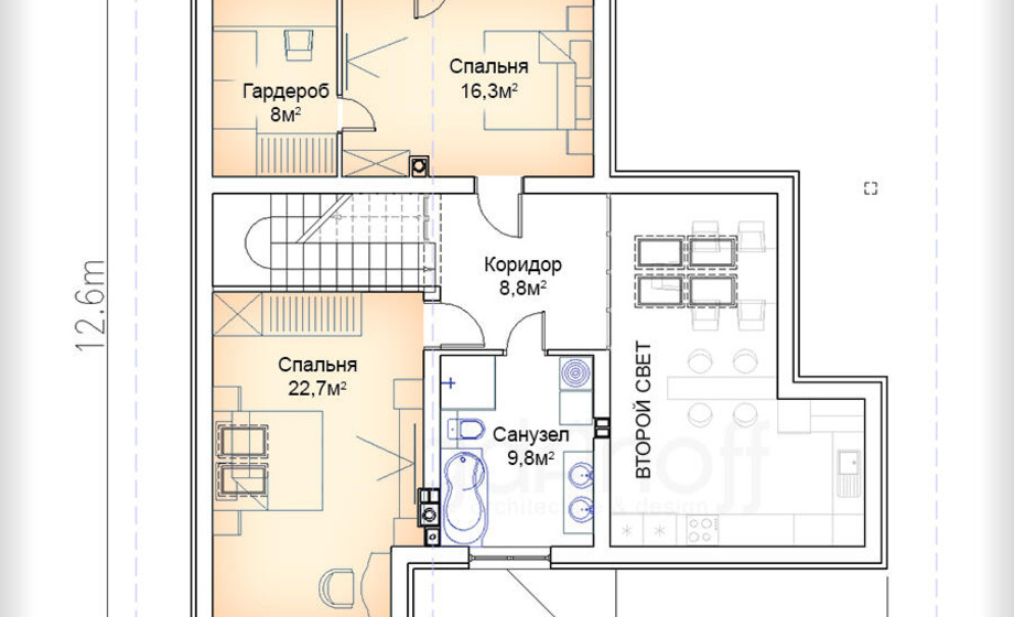
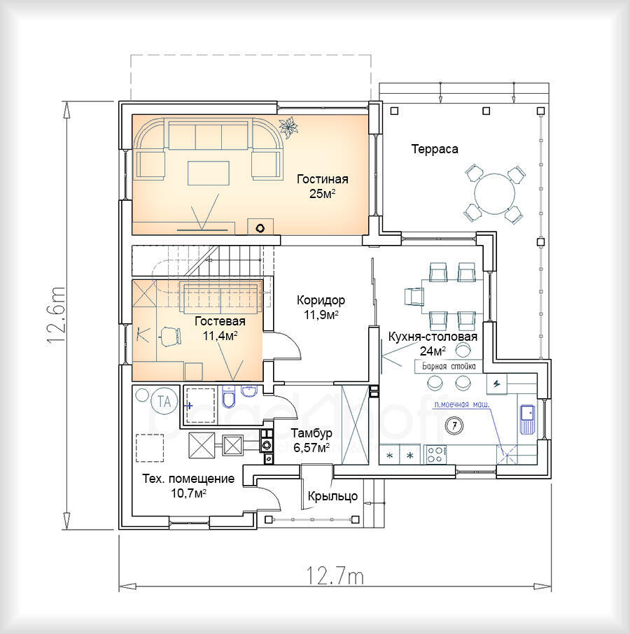
  • Общая площадь:

    165 м2

  • три жилых комнаты:

  • гостиная :

    25 кв метров

  • кухня-столовая :

    24 кв метров

  • Срок строительства: до 4.5 месяцев
    Характеристики
  • три жилых комнаты:

  • гостиная :

    25 кв метров

  • кухня-столовая :

    24 кв метров

  • 2 сан-узла:

  • 2 спальни, гостиная, 2 сан-узла :

  • Описание

    Современный стильный дом для большой и дружной семьи.

    В стоимость строительства входит: АР (архитектурный проект)  КР (фундамент, стены, кровля) фундамент (геология)  , ввод и разводка канализации, ввод (гильзы) водопровода ,электричества,    наружные стены из газосиликатного  блока (300мм), бетонные черновые полы 100 мм  внутренние   перегородки (120мм)   крыша  метало-  черепица толщина металла 0,5 мм ,  межэтажное перекрытие деревянные балки 200мм . 

     

    СТОИМОСТЬ СТРОИТЕЛЬСТВА С ОТДЕЛКОЙ ПОД КЛЮЧ 602 000 бел рублей.

     

    Предлагаем строительство с отделкой под ключ. Гарантия на выполненные работы 48 месяцев.

    Наши преимущества
    Мы строим дачные дома, коттеджи , бани под ключ и берем на себя
    полный комплекс строительных услуг

    Создаем проект дома, либо выбираете из готовых

    Проводим геодезию участка

    Возводим фундамент

    Возводим стены и перекрытия

    Кровельные работы

    Фасадные работы

    Инженерные работы

    Получистовая отделка

    Чистовая отделка

    Мы занимаемся строительством под ключ
    дачных домов, коттеджей , бань,
    в любой ценовой категории,
    в любой точке Республики Беларусь!
    По вашему желанию разработаем,
    утвердим проект, который вам понравится
    и построим все под ключ.

    Контакты

    • г. Минск, ул. Якубова 10
    • +375 (44) 576-24-99
    Оставить заявку
    Заказать консультацию
    Нажимая на кнопку, вы даете согласие на обработку своих персональных данных