С Отделкой. ТН-64. Проект дома 12.3*11.1 метр.
С Отделкой. ТН-64. Проект дома 12.3*11.1 метр.
Цена строительства от: 159 000 BYN
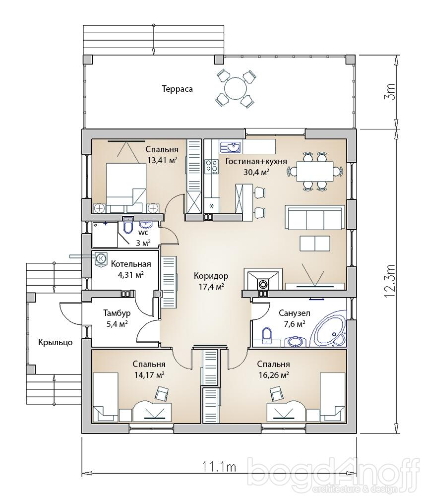
  • Общая площадь:

    112 м2

  • 3 спальни, гостиная, 2 сан-узла.:

  • Срок строительства: до 4 месяцев
    Характеристики
  • 3 спальни, гостиная, 2 сан-узла.:

  • Описание

    Проект ТН — 64 . ХИТ -СТРОИТЕЛЬСТВА .Современный стильный дом для круглогодичного проживания. Три просторных жилых комнаты и два сан-узла позволяет создать максимальный комфорт для проживания большой и дружной семьи. Из общей комнаты есть выход на большую террасу, где так же можно построить печь барбекю.

    В стоимость строительства входит: АР (архитектурный проект) КР (фундамент, стены, кровля)  фундамент (геология)  , ввод и разводка канализации, ввод (гильзы) водопровода ,электричества,    наружные стены из газосиликатного  блока (300мм)   внутренние   перегородки (120мм), бетонные черновые полы 100 мм, крыша  метало-черепица «Монтерей»   толщина металла 0,45 мм . Балки перекрытия 200 мм.

     

    Стоимость строительства с отделкой под ключ 410 000 бел рублей.

     

    Предлагаем строительство с полной отделкой под ключ.   Гарантия на выполненные работы 48 месяцев.

    Наши преимущества
    Мы строим дачные дома, коттеджи , бани под ключ и берем на себя
    полный комплекс строительных услуг

    Создаем проект дома, либо выбираете из готовых

    Проводим геодезию участка

    Возводим фундамент

    Возводим стены и перекрытия

    Кровельные работы

    Фасадные работы

    Инженерные работы

    Получистовая отделка

    Чистовая отделка

    Мы занимаемся строительством под ключ
    дачных домов, коттеджей , бань,
    в любой ценовой категории,
    в любой точке Республики Беларусь!
    По вашему желанию разработаем,
    утвердим проект, который вам понравится
    и построим все под ключ.

    Контакты

    • г. Минск, ул. Якубова 10
    • +375 (44) 576-24-99
    Оставить заявку
    Заказать консультацию
    Нажимая на кнопку, вы даете согласие на обработку своих персональных данных