КС-99. Банный комплекс с бассейном 19.7* 18 метров
КС-99. Банный комплекс с бассейном 19.7* 18 метров
Цена строительства от: 545 000 BYN
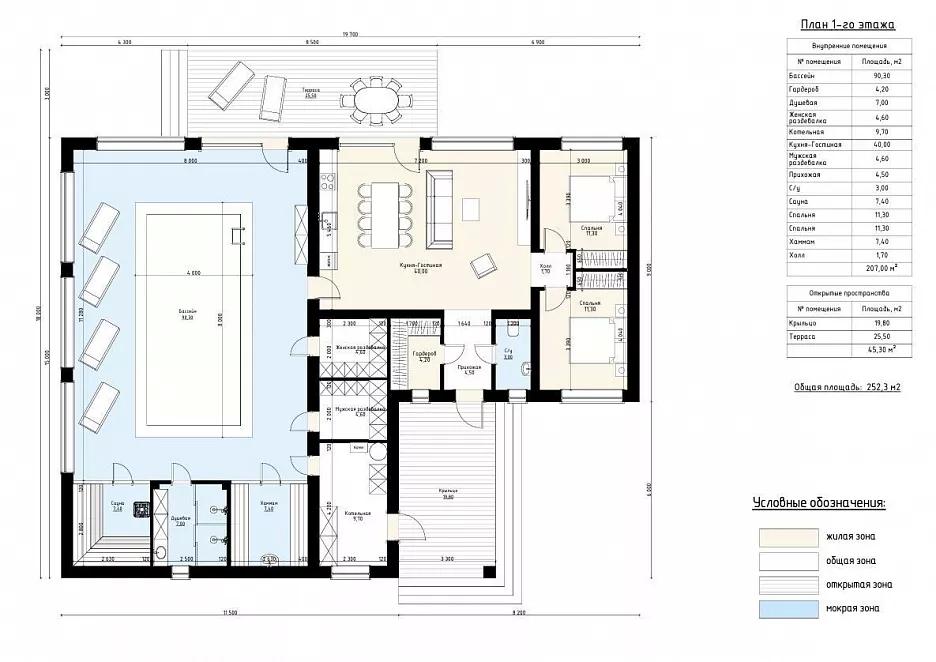
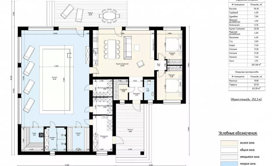
  • Общая площадь:

    255 м2

  • бассейн, русская парная, турецкий хамам, 1 сан-узел,, гостиная, две спальни, раздевалки мужская - женская:

  • Срок строительства: до 6 месяцев
    Характеристики
  • бассейн, русская парная, турецкий хамам, 1 сан-узел,, гостиная, две спальни, раздевалки мужская - женская:

  • Описание

    Строительство современного СПА-комплекса. Основные преимущества банного комплекса – просторный бассейн, уютная зона отдыха и панорамные окна, наполняющие помещение светом.

    Современный минималистичный стиль подчеркивает гармонию с природой.  Строительство из блоков  обеспечивает долговечность и теплоизоляцию, делая проект идеальным для загородного участка.

    Внутренние помещения –  бассейн, баня с парной, помещение для хамам, душевые, кухня, комнаты отдыха, две спальни, раздевалки мужская и женская, санузлы. Открытые пространства – 80 м²: террасы и зона отдыха. Банный современный  СПА-комплекс   создан для комфортного отдыха всей семьей.

     

    В стоимость строительства входит: АР (архитектурный проект) КР (фундамент, стены, кровлю)   фундамент (геология) , ввод и разводка канализации, водопровода(гильза), электроэнергии (гильза) ,   наружные стены из газосиликатного блока (300мм,  внутренние и перегородки (120мм) , бетонные черновые полы, монолитное перекрытие, бетонная чаша бассейна с техническим помещением.

    Материал стен  можно изменять по желанию. Стены могут быть из газосиликатного блока, керамзитобетонного блока, керамического блока.

     

     

      Гарантия на выполненные работы 48 месяцев. Предлагаем строительство с отделкой под ключ.

    Наши преимущества
    Мы строим дачные дома, коттеджи , бани под ключ и берем на себя
    полный комплекс строительных услуг

    Создаем проект дома, либо выбираете из готовых

    Проводим геодезию участка

    Возводим фундамент

    Возводим стены и перекрытия

    Кровельные работы

    Фасадные работы

    Инженерные работы

    Получистовая отделка

    Чистовая отделка

    Мы занимаемся строительством под ключ
    дачных домов, коттеджей , бань,
    в любой ценовой категории,
    в любой точке Республики Беларусь!
    По вашему желанию разработаем,
    утвердим проект, который вам понравится
    и построим все под ключ.

    Контакты

    • г. Минск, ул. Якубова 10
    • +375 (44) 576-24-99
    Оставить заявку
    Заказать консультацию
    Нажимая на кнопку, вы даете согласие на обработку своих персональных данных