НОВИНКА. Е-77. СПА-комплекс с цокольным этажом 7.9*13.2 метров.
НОВИНКА. Е-77. СПА-комплекс с цокольным этажом 7.9*13.2 метров.
Цена строительства от: 311 000 BYN
  • Общая площадь:

    80+80 м2

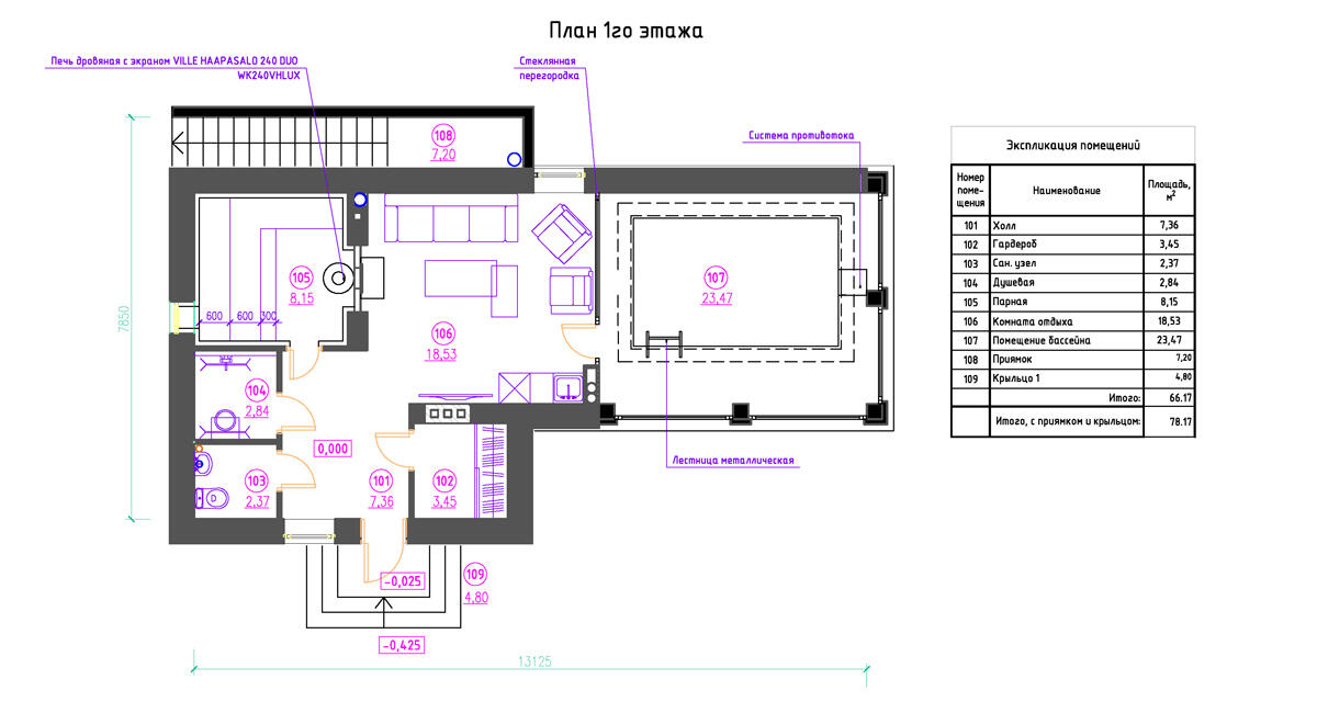
  • бассейн, цокольный этаж, комната отдыха, русская парная, 2 сан-узла.:

  • Срок строительства: до 5 месяцев
    Характеристики
  • бассейн, цокольный этаж, комната отдыха, русская парная, 2 сан-узла.:

  • Описание

    Эта небольшой  банный комплекс  с бассейном и русской парной , созданная нашим архитектором. – наглядный пример того,  мы спроектировать объект, в котором есть все необходимое для полноценного комфортного отдыха. Площадь, которую занимает строение, составляет  более  80 кв.м и столько же цокольного этажа. При этом нам удалось найти в нем место для массы функциональных и технических опций. Результатом с удовольствием делимся с вами.

    Одна из перегородок в комнате отдыха – стеклянная, с дверью, ведущей в бассейн. А сам бассейн отделен от улицы большими витражами по двум стенам: можно плавать, нырять, бороться с противотоком, лежать на воде или пить кофе в шезлонге, одновременно наслаждаясь видом за окном.

    Новинкой нашего проекта является цокольный этаж. Вернувшись на улицу и обойдя постройку, обнаруживаем приямок с лестницей под массивным деревянным навесом. Лестница ведет в цокольный этаж. Здесь находятся железобетонная чаша бассейна и обслуживающее его оборудование, отдельное техническое помещение, в котором можно расположить   тренажерный зал, бильярдную, погреб для хранения разных продуктов питания, а также санузел и кладовая.

    В стоимость строительства входит: Постоянный технический контроль, АР (архитектурный проект),КР ( конструктивное решение на фундамент, чашу бассейна, стены, кровля)  фундамент (геология), цокольный этаж по всему периметру,  наружные стены из газосиликатного  блока 300 мм ,  внутренние перегородки из газосиликатного блока 120 мм ,  перекрытие деревянные балки 200 мм ,  бетонная чаша для бассейна, бетонные черновые полы 100 мм, ввод и  разводка канализации, водопровод(гильза), ввод электроэнергии(гильза) .

    Оборудование для бассейна   в стоимость не входит все зависит от комплектации бассейна и страны производителя.

    Гарантия на выполненные работы 48 месяцев.  Предлагаем строительство с отделкой под ключ.

    Наши преимущества
    Мы строим дачные дома, коттеджи , бани под ключ и берем на себя
    полный комплекс строительных услуг

    Создаем проект дома, либо выбираете из готовых

    Проводим геодезию участка

    Возводим фундамент

    Возводим стены и перекрытия

    Кровельные работы

    Фасадные работы

    Инженерные работы

    Получистовая отделка

    Чистовая отделка

    Мы занимаемся строительством под ключ
    дачных домов, коттеджей , бань,
    в любой ценовой категории,
    в любой точке Республики Беларусь!
    По вашему желанию разработаем,
    утвердим проект, который вам понравится
    и построим все под ключ.

    Контакты

    • г. Минск, ул. Якубова 10
    • +375 (44) 576-24-99
    Оставить заявку
    Заказать консультацию
    Нажимая на кнопку, вы даете согласие на обработку своих персональных данных