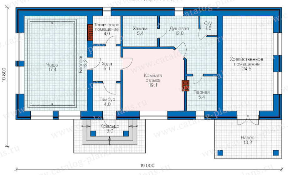
НОВИНКА. В-64. СПА-комплекс с хамам и сауной 19x8 метров.
НОВИНКА. В-64. СПА-комплекс с хамам и сауной 19x8 метров.
Цена строительства от: 305 000 BYN
  • Общая площадь:

    132 м2

  • комната отдыха, помещение для хамам, русская парная, 1 сан-узел, бассейн.:

  • Срок строительства: до 4,5 месяцев
    Характеристики
  • комната отдыха, помещение для хамам, русская парная, 1 сан-узел, бассейн.:

  • Описание

    Проект В-64 . Строительство  банного СПА- комплекса  в европейском архитектурном  стиле,   для настоящих ценителей загородной жизни. 

    В стоимость строительства входит: АР (архитектурный проект) КР (фундамент, стены, кровлю)   фундамент (геология) , ввод и разводка канализации, водопровода(гильза), электроэнергии (гильза) ,   наружные стены из газосиликатного блока (300мм,  внутренние и перегородки (120мм) , бетонные черновые полы,  крыша  металлочерепица  «Супер-монтерей»  , межэтажное перекрытие деревянные балки 200 мм, бетонная чаша бассейна с техническим помещением.

    Материал стен  можно изменять по желанию. Стены могут быть из газосиликатного блока, керамзитобетонного блока, керамического блока.

    Материал кровли можно изменять по желанию. Крыша может быть из металлочерепицы, металлочерепица «композитная», фальцевая кровля «клик-фальц» профлист

      Гарантия на выполненные работы 48 месяцев. Предлагаем строительство с отделкой под ключ.

    Наши преимущества
    Мы строим дачные дома, коттеджи , бани под ключ и берем на себя
    полный комплекс строительных услуг

    Создаем проект дома, либо выбираете из готовых

    Проводим геодезию участка

    Возводим фундамент

    Возводим стены и перекрытия

    Кровельные работы

    Фасадные работы

    Инженерные работы

    Получистовая отделка

    Чистовая отделка

    Мы занимаемся строительством под ключ
    дачных домов, коттеджей , бань,
    в любой ценовой категории,
    в любой точке Республики Беларусь!
    По вашему желанию разработаем,
    утвердим проект, который вам понравится
    и построим все под ключ.

    Контакты

    • г. Минск, ул. Якубова 10
    • +375 (44) 576-24-99
    Оставить заявку
    Заказать консультацию
    Нажимая на кнопку, вы даете согласие на обработку своих персональных данных